農業用製品
製品リスト
Product
農業用製品
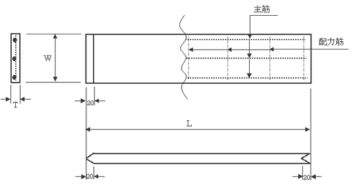
◆鉄筋コンクリート 畔板
|
|
※表は横にスクロールできます
| 呼び名 | 長さ (mm) |
厚さ (mm) |
巾 (mm) |
主筋 | 配力筋 | 重量(kg) | ||
| 径(mm) | 本数 | 径(mm) | 本数 | |||||
| 畔板950x40x300 | 950 | 40 | 300 | 6.00 | 3 | 4.00 | 4 | 26 |
| 畔板1200x40x450 | 1200 | 40 | 450 | 6.00 | 3 | 4.00 | 4 | 50 |
| 畔板1500x40x400 | 1500 | 40 | 400 | 6.00 | 3 | 4.00 | 5 | 56 |
| 畔板1800x40x300 | 1800 | 40 | 300 | 6.00 | 3 | 4.00 | 7 | 50 |
※表は横にスクロールできます
![]() |
![]() |
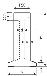
◆畦畔ブロック
|
|
![]() |
![]() 畦畔ブロック 600型 |
※表は横にスクロールできます
| 呼び名 | 寸法(mm) | 配力筋 | 重量(kg) | ||||||||
| 横鉄筋 | 縦鉄筋 | ||||||||||
| a | b | c | d | e | f | 径 | 本数 | 径 | 本数 | ||
| 畦畔400x1000 | 400 | 1000 | 160 | 38 | 41 | 30 | 2.6 | 2 | 2.6 | 5 | 56 |
| 畦畔500x1000 | 500 | 1000 | 210 | 38 | 41 | 30 | 2.6 | 2 | 2.6 | 5 | 73 |
| 畦畔600x600 | 600 | 600 | 250 | 40 | 40 | 40 | 2.6 | 4 | 2.6 | 5 | 60 |
※表は横にスクロールできます
◆角落し桝
![]() |
![]() |
|
|
重量 33kg |
| 呼び名 | 寸法(mm) | 重量(kg) |
| 320x450 | 320x180x450 | 33 |










